在最贴近市井生活的沿街居民楼中,想用心感受城市脉搏,从而产出好设计。
公司为了让员工在一个耳目一新的环境里办公,把每天上班当作动力而不是负担,设计师在经历了无数次的思想冲击、解构和重组后,决定以高效协同、大量储物、自然放松、优美曲线等关键词,组成设计要点。
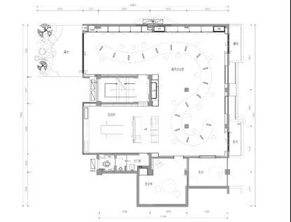
空间平面呈规整的L型,设计师将空间所需的所有的不规整功能区如:卫生间、水吧一一隐藏,把最大的舞台留给办公。因而大面积的曲线办公台面,没有阻隔伙伴之间的距离。让每一个人的呼声得到及时的关注和反馈。
无尽的白色空间,除了工位以外没有丝毫的余赘。构成主义的介入,强调了空间中的势,心无旁骛地进行构想与创作,让心流能效发挥到极致。
在创造新的体验空间的同时,设计师将大量的收纳功能隐藏于白色壁柜之中,进行最有效的分类与收藏。
深圳装修公司王工曾经说过:“直线属于人类,而曲线归于上帝。”装修公司设计师专注于研究中国幼儿亲子空间设计,他将日常大量应用的曲线,沿用在自己的办公空间,营造一种温和而有力的空间氛围。
同时,两条S型曲线的应用将工作区不同维度地进行切分,打破空间的呆板格局。超薄钢板与半圆墩支撑打造的趣味工作台,自然构化出不同工作属性的小场景,每个连接区域便是大家思维碰撞的舞台。
108个LED光源跟随工作台的路径而制作完成的S形吊灯,将空间再次切分,使原本低矮的楼层高度变化出不同的视觉感受。对于一个装修设计团队来说,跨团队多角色沟通、异地协调工作、甚至是随时开展头脑风暴,我们都非常需要一个真正多元化的办公场景支持。


装修公司在传统格子间中,大量翻阅书籍和材料样本、也总让工作繁忙的设计师们觉得空间狭窄窒息,而急需情绪释放。
柜门是布满渐变点阵的白色黑板漆面,既连接了上下空间层次的属性,也同暖色橡木墙板构成空间中讨巧而精细的层次感。
装饰公司设计师认为当下的设计团队是合作伙伴的关系,在一起工作的时间远远大于自己与家人相处的时间。这个家人之外的大家庭,也需要每一个人的凝聚力,才能共同创造出抚慰人心的装修设计。